Leistungen
Effiziente Planung und Umsetzung für Ihren Erfolg
Vertrauen Sie auf über 25 Jahre Erfahrung in der Versorgungstechnik.

Ganzheitliche Leistungsabwicklung
Planungsdienstleistungen in der Technischen Gebäudeausrüstung (TGA)
Unser Expertenteam übernimmt die gesamte Planung für Ihre Projekte – vom Einfamilienhaus (EFH) bis hin zu Industriegebäuden und großen Mehrfamilienhäusern (MFH). Wir bieten umfassende Leistungen gemäß HOAI (Honorarordnung für Architekten und Ingenieure) in den Leistungsphasen (LPH) 1-6.

Lösungen für Ihre Zielgruppe
Profitieren Sie von unserer Expertise, um technische Anforderungen zuverlässig und zielgerichtet zu meistern. Dabei legen wir besonders auf die folgenden Zielgruppen wert:
Handel
Beratung zu energiesparenden Produktlinien
Schulungen zu neuen Technologien und Produkten für Vertriebsteams
Unterstützung bei der Sortimentsplanung im Bereich Energiesysteme
Bereitstellung von Marketingmaterialien zur Verkaufsförderung
Technische Beratung für Kundenanfragen und Projekte
Planung
Elektrotechnischer Anlagen
Wir entwickeln elektrotechnische Konzepte, die sicher, effizient und auf Ihre Gebäudeanforderungen zugeschnitten sind. Von der Netzplanung bis zur Einbauüberwachung – unsere Expertise steht Ihnen zur Verfügung.
Teilleistungen nach der
HOAI
Neben vollständigen Planungsaufträgen bieten wir Ihnen auch einzelne Planungsleistungen, abgestimmt auf Ihren Bedarf:
Präzise Berechnung der benötigten Heizleistung für eine optimale Wärmeverteilung und Energieeinsparung.

Optimale Belüftung und Nachhaltige Energie
Innovative Lösungen für gesunde Raumluft und erneuerbare Energien

Planung und Einbau von Photovoltaikanlagen (PV-Anlagen)
Von der Planung bis zur Installation bieten wir maßgeschneiderte Photovoltaik-Lösungen, um Ihre Energiekosten zu senken und die Umwelt zu schonen.

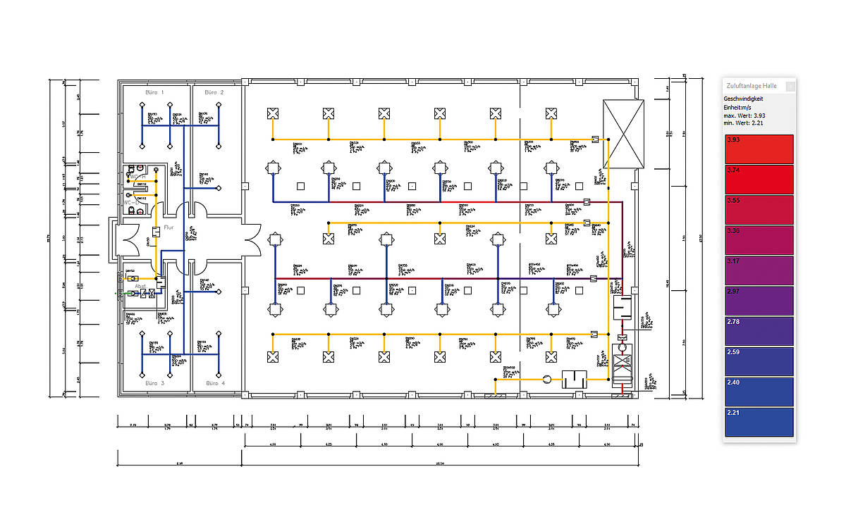
Lüftungskonzepte und CAD-Dienstleistungen
Wir planen effiziente Lüftungssysteme für beste Raumluftqualität und erstellen präzise CAD-Zeichnungen zur Visualisierung und Umsetzung.
Wir schaffen für Sie eine
Qualitätsgarantie
Ihr Partner für Qualität und Transparenz.
Qualitätsstandards
Langfristige Zuverlässigkeit durch Einhaltung aktueller DIN- und VDI-Normen.
Individuelle Lösungen
Passgenaue Planung und Berechnungen, zugeschnitten auf die spezifischen Anforderungen Ihres Projekts.
Transparente Preise
Faire Preisgestaltung auf Quadratmeterbasis für optimale Kostenkontrolle.
Kontaktieren Sie uns
Wir freuen uns, gemeinsam mit Ihnen Ihre Projekte zu realisieren.
Adresse
Stotzheimer Weg 2 50321 Brühl
Bürozeiten
MO-FR 8:00 - 18:00 Uhr
